METALKA: Newly refurbished office space for rent in city centre
METALKA: Newly refurbished office space for rent in city centre
METALKA is a modern mixed-use office building with high-quality renovated office premises, a fitness center in the basement, and a prestigious wine bar opening on the ground floor.
During the renovation, the building was upgraded with energy-efficient infrastructure and new elevators.
Three elevators provide access to the office spaces and parking areas in two garages. Bicycle and car-sharing services are available in the immediate vicinity.
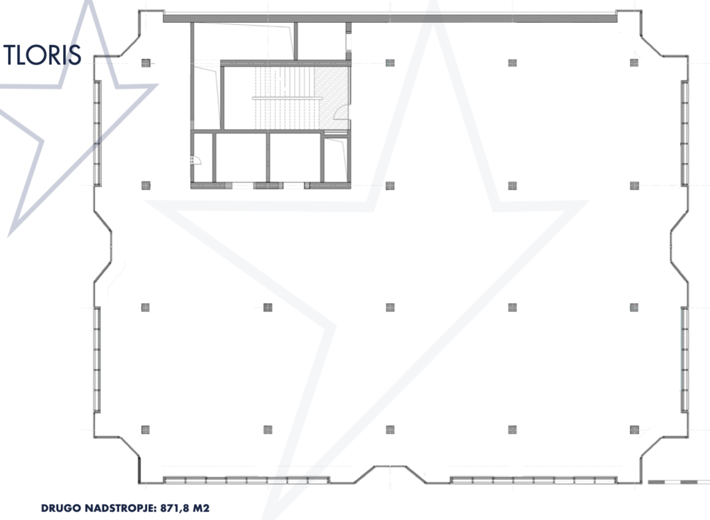
The 1st floor measures 846.40 m², while the 2nd and 3rd floors each measure 871.80 m².
The 3rd floor is divided into smaller units ranging from approximately 90 m² to 131 m², with various size combinations also available. Tenants share a kitchen and restroom facilities.
Two units are also available on the mezzanine level of the 1st floor, namely:
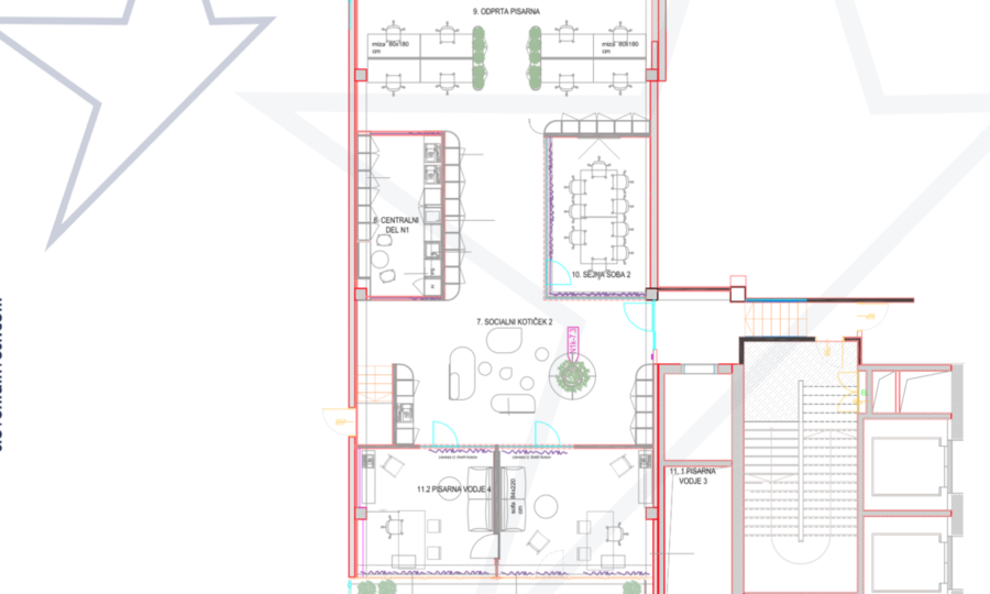
- UNIT 1 with a size of 268.63 m² includes a conference room, separate offices, a kitchen and sanitary facilities (M, F)
- UNIT 2 with a size of 277.04 m² includes a conference room, separate offices and a kitchen.
They can only be leased together.
The total available office area amounts to approximately 2,974 m².
The building is located on Dalmatinova Street and offers views of the Supreme Court of the Republic of Slovenia on one side and Ljubljana Castle on the other. The river and the historic old town center are only a two-minute walk away. The main bus and railway stations are also just a short walk away. Numerous Ljubljana public transport bus lines run along Slovenska and Gosposvetska streets with very frequent service. Miklošič Park is located across the street, and Tivoli Park with its open green areas and numerous recreational facilities is also within walking distance.
The building was constructed in 1973. It was originally designed as a department store and was later converted into a predominantly office building. It is located in an excellent area, offering high-quality office space and a large number of parking spaces. The building is protected as a cultural heritage site, therefore all its original features have been preserved, including marble and stone columns and walls, as well as marble floors.
The office spaces on the 3rd floor will be completed and ready for occupancy by the end of March 2026.
The office spaces on the 1st and 2nd floors will be completed according to the tenant’s requirements and needs.
A total of 98 parking spaces are available in two underground garages at a price of €190 per space per month. Of these, 22 are double parking spaces (with restricted access for one vehicle) and are available at a price of €240 per space per month.
The rent is:
€17/m²/month + VAT + operating costs for furnished office spaces on the 1st, 2nd and 3rd floors
€17/m²/month + VAT + operating costs for unfurnished office spaces on the mezzanine level. These spaces can also be leased furnished at a higher rate.
The expected shared operating costs (property management, building insurance and machinery breakdown insurance) are distributed among tenants according to the allocation key and amounted to €0.91/m²/month in 2025.
The cost of the reception service is expected to amount to between €1/m² and €1.5/m².
Individual costs (heating, domestic hot water and electricity) amounted to €3.49/m²/month in 2025.
Total costs (shared + individual) amounted to €4.41/m²/month in 2025.
We do not charge commission to tenants.
Please contact us to arrange a viewing.


















































